
UPDATED:
Key Details
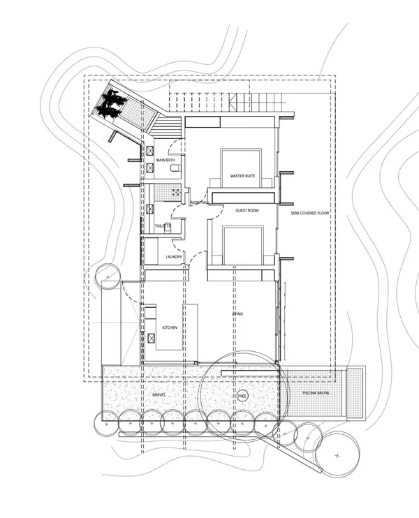
Property Type Single Family Home
Sub Type Single Family Detached
Listing Status Active
Purchase Type For Sale
Square Footage 1,076 sqft
Price per Sqft $353
Subdivision Burn Brae Plantation
MLS Listing ID RX-11136771
Bedrooms 2
Full Baths 2
Construction Status Preconstruction
HOA Fees $150/mo
HOA Y/N Yes
Tax Year 2025
Lot Size 0.445 Acres
Property Sub-Type Single Family Detached
Property Description
Location
County Out Of Country
Community Burn Brae Plantation
Area 5970
Zoning Residential
Rooms
Other Rooms Laundry-Inside, Laundry-Util/Closet
Master Bath Mstr Bdrm - Ground
Interior
Interior Features Built-in Shelves, Closet Cabinets, Entry Lvl Lvng Area, Pantry, Volume Ceiling
Heating Other
Cooling Electric, Zoned
Flooring Other, Tile
Furnishings Unfurnished
Exterior
Pool Concrete
Community Features Gated Community
Utilities Available Electric, Public Water, Septic, Well Water
Amenities Available Boating
Waterfront Description Lagoon,Marina,Navigable,No Fixed Bridges,Ocean Access
Exposure East
Private Pool Yes
Building
Lot Description 1/4 to 1/2 Acre, Treed Lot
Story 1.00
Foundation Concrete, Other, Stucco
Construction Status Preconstruction
Others
Pets Allowed Yes
Senior Community No Hopa
Restrictions None
Acceptable Financing Cash, Owner Financing
Horse Property No
Membership Fee Required No
Listing Terms Cash, Owner Financing
Financing Cash,Owner Financing
Virtual Tour https://www.propertypanorama.com/200-Burn-Brae-Way-Bocas-Del-Toro-Out-of-Country-Out-of-Country-00000/unbranded



